Home
Projekte
News
Design
Büro
Kontakt
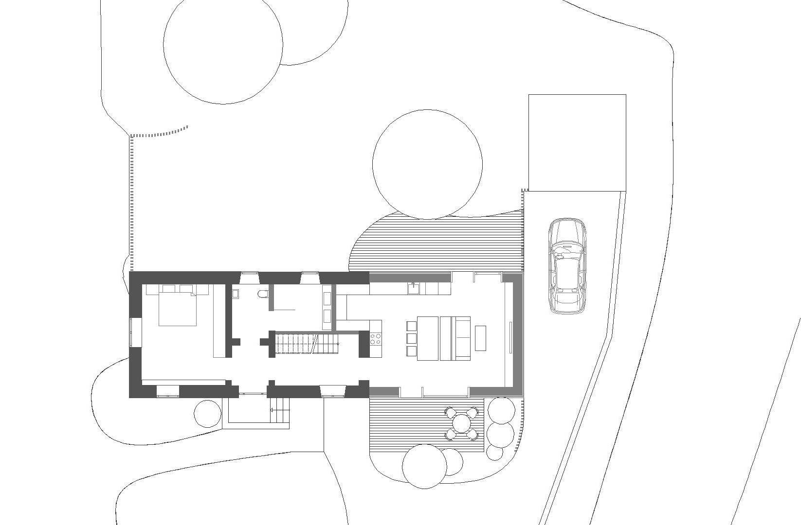
Kellerstöckel L
Reorganisation und Revitalisierung
Edelsbach, 2016–2020
© epps
Optik Achatz
Projekte
Haus Wi